Home The Villas Floor Plan
Floor Plan PDF Print E-mail

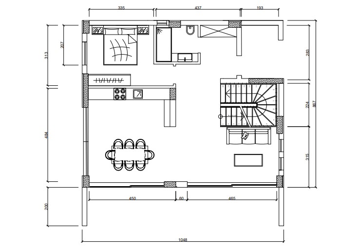
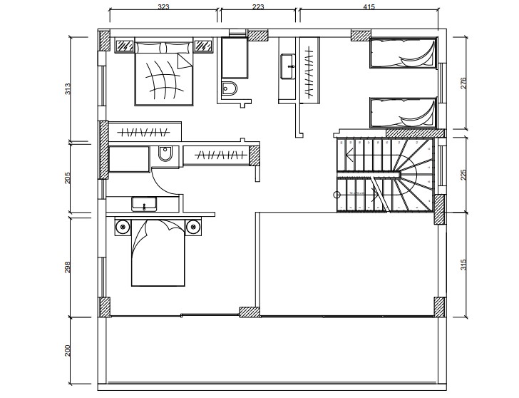
You will see the basement, ground and first floor plans here.

 

 

 

 

www.panoramavilla.com
panoramavilla.com